混凝土生產企業中,我們混凝土攪拌站中污水主要出現的地方是我們的攪拌站洗車部分還有主站部分以及我們的砂石回收系統中。這些地方是混凝土出現污水量最大的地方。為了適應環保發展需求。那么這些污水應該如何回收處理呢?
在混凝土攪拌站生產作業過程中,會源源不斷的排出臟水,這些臟水無論是對于企業還是周邊環境的影響都是一個較為難處理的問題。所以這也是當下混凝土生產企業迫切需要改進的地方。
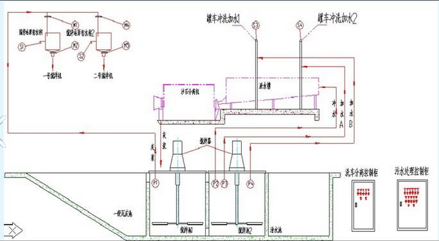
在混凝土攪拌站的臟水雖然難處理,但是我們新水工開發的攪拌站專用污水處理系統中。我們合理的將混凝土生產中的廢水進行合理的整合分類。統一的進行直接回收和沉淀處理。解決污水難以處理的難題。
在混凝土分離后的砂漿中配合一定的清水作為攪拌用水使用。因其中含有外加劑等對混凝土生產再次使用絲毫沒有影響。而且還能間接性的促進我們設備的使用成本降低。
其他經過沉淀過后的廢水。集中儲蓄在清水池中,就可以進行重復多次的使用,無形當中也減少了作業流程中的投入。此外,經過積淀后的清水還可以對場地進行沖刷降塵,降低攪拌站的空氣塵灰的百分比。
以上處理辦法,希望對你有所幫助!想了解更多混凝土攪拌站的資訊,請掃描以下二維碼!

該信息出自砼商網 (http://www.djhuliang.cn) 群號:461026573群號